Denah Ruko Minimalis Penukal Abab Lematang Ilir

Perkembangan Ruko Minimalis di Penukal Abab Lematang Ilir
Denah ruko minimalis Penukal Abab Lematang Ilir menjadi topik penting seiring meningkatnya kebutuhan ruang usaha yang praktis dan efisien. Wilayah Penukal Abab Lematang Ilir menunjukkan pertumbuhan aktivitas ekonomi lokal yang mendorong permintaan bangunan ruko dengan desain sederhana namun fungsional. Ruko minimalis dipilih karena mampu menyesuaikan kebutuhan usaha tanpa memerlukan lahan yang terlalu luas.
Peran Ruko dalam Aktivitas Ekonomi Lokal
Keberadaan ruko minimalis di Penukal Abab Lematang Ilir berperan sebagai penggerak ekonomi masyarakat. Banyak pelaku usaha kecil dan menengah memanfaatkan ruko sebagai tempat berdagang, membuka jasa, maupun menjalankan kantor skala kecil. Denah ruko yang dirancang dengan baik membantu meningkatkan kenyamanan operasional dan daya tarik usaha.
Konsep Dasar Ruko Minimalis

Konsep ruko minimalis di Penukal Abab Lematang Ilir menitikberatkan pada kesederhanaan bentuk, efisiensi ruang, dan kemudahan perawatan. Pendekatan desain ini memungkinkan bangunan terlihat modern sekaligus hemat biaya pembangunan.
Prinsip Kesederhanaan Desain
Kesederhanaan desain menjadi ciri utama ruko minimalis. Bentuk bangunan dirancang dengan garis tegas dan elemen yang tidak berlebihan. Prinsip ini membuat ruko mudah disesuaikan dengan berbagai jenis usaha.
Efisiensi Tata Ruang
Efisiensi tata ruang pada denah ruko minimalis Penukal Abab Lematang Ilir memastikan setiap meter persegi dimanfaatkan secara optimal. Ruang usaha, area servis, dan sirkulasi dirancang agar tidak saling mengganggu.
Fleksibilitas Fungsi
Fleksibilitas fungsi menjadi keunggulan ruko minimalis. Denah yang terbuka memudahkan perubahan layout sesuai perkembangan usaha di masa depan.
Pentingnya Denah dalam Perencanaan Ruko

Denah ruko minimalis Penukal Abab Lematang Ilir berperan sebagai panduan utama dalam proses pembangunan. Perencanaan denah yang matang membantu menghindari kesalahan konstruksi dan meningkatkan kenyamanan pengguna.
Sirkulasi Pengunjung
Sirkulasi pengunjung dirancang agar pergerakan masuk dan keluar ruko berjalan lancar. Denah yang baik memudahkan pelanggan mengakses area usaha tanpa hambatan.
Akses Barang dan Logistik
Akses barang menjadi bagian penting dalam denah ruko minimalis. Jalur khusus untuk distribusi barang membantu kelancaran operasional tanpa mengganggu pengunjung.
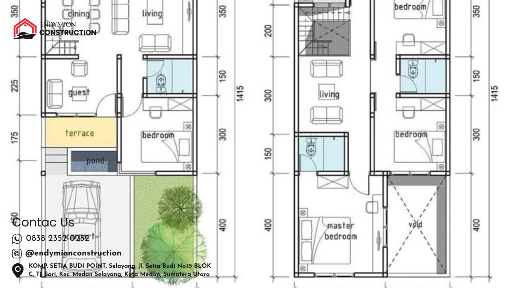
Denah Ruko Minimalis Satu Lantai
Denah ruko satu lantai banyak diterapkan di Penukal Abab Lematang Ilir karena sesuai dengan kebutuhan usaha skala kecil.
Area Usaha Utama
Area usaha utama biasanya berada di bagian depan ruko. Penempatan ini memudahkan interaksi dengan pelanggan dan meningkatkan visibilitas usaha.
Area Servis
Area servis seperti toilet dan gudang kecil ditempatkan di bagian belakang. Penempatan ini menjaga area depan tetap rapi dan nyaman.
Bukaan dan Pencahayaan
Bukaan pintu dan jendela dirancang untuk memaksimalkan pencahayaan alami. Denah ruko minimalis yang terang menciptakan suasana usaha yang lebih menarik.
Denah Ruko Minimalis Dua Lantai

Fungsi Lantai Dasar
Lantai dasar difokuskan untuk aktivitas usaha utama. Denah lantai ini dirancang terbuka agar mudah diatur sesuai kebutuhan.
Fungsi Lantai Atas
Lantai atas sering dimanfaatkan sebagai ruang kantor, gudang, atau tempat tinggal. Denah lantai atas dirancang lebih privat dibandingkan lantai bawah.
Tangga sebagai Penghubung
Tangga menjadi elemen penting dalam denah ruko dua lantai. Penempatan tangga yang tepat membantu efisiensi ruang dan keamanan pengguna.
Ukuran Ideal Ruko Minimalis
Ukuran ruko minimalis di Penukal Abab Lematang Ilir disesuaikan dengan jenis usaha dan ketersediaan lahan.
Lebar dan Panjang Bangunan
Lebar dan panjang bangunan menentukan kapasitas ruang usaha. Denah ruko minimalis umumnya dirancang dengan ukuran proporsional agar tidak terasa sempit.
Tinggi Ruang
Tinggi ruang memengaruhi kenyamanan dan sirkulasi udara. Denah ruko dengan tinggi ruang yang cukup menciptakan suasana lebih lega.
Desain Interior Ruko Minimalis
Desain interior ruko minimalis Penukal Abab Lematang Ilir mendukung fungsi usaha sekaligus kenyamanan pengguna.
Tata Letak Furnitur
Tata letak furnitur disesuaikan dengan denah ruko. Penempatan furnitur yang tepat membantu memaksimalkan ruang gerak.
Pemilihan Material Interior
Material interior dipilih yang mudah dirawat dan tahan lama. Material sederhana mendukung konsep minimalis secara keseluruhan.
Warna dan Pencahayaan
Warna netral dan pencahayaan yang baik membantu menciptakan suasana usaha yang profesional dan nyaman.
Fasad Ruko Minimalis
Fasad ruko minimalis di Penukal Abab Lematang Ilir menjadi identitas visual usaha.
Tampilan Depan Bangunan
Tampilan depan bangunan dirancang sederhana namun menarik. Elemen garis lurus dan warna netral sering digunakan.
Signage Usaha
Signage ditempatkan secara strategis agar mudah terlihat. Denah ruko yang baik mempertimbangkan ruang untuk identitas usaha.
Sistem Utilitas Ruko
Sistem utilitas mendukung kelancaran operasional ruko minimalis.
Instalasi Listrik
Instalasi listrik dirancang sesuai kebutuhan usaha. Denah ruko membantu menentukan titik stop kontak dan pencahayaan.
Sistem Air Bersih
Sistem air bersih dan pembuangan direncanakan sejak awal agar tidak mengganggu fungsi ruang.
Efisiensi Biaya Pembangunan
Denah ruko minimalis Penukal Abab Lematang Ilir membantu mengontrol biaya pembangunan.
Perencanaan Anggaran
Perencanaan anggaran yang matang menghindari pemborosan. Denah yang jelas memudahkan estimasi biaya.
Perawatan Bangunan
Bangunan ruko minimalis cenderung lebih mudah dirawat. Desain sederhana membantu menekan biaya perawatan jangka panjang.
Tantangan dalam Merancang Denah Ruko
Perancangan denah ruko minimalis memiliki tantangan tersendiri.
Keterbatasan Lahan
Keterbatasan lahan menuntut kreativitas dalam mengatur ruang. Denah ruko harus mampu memaksimalkan area yang tersedia.
Kebutuhan Usaha Beragam
Kebutuhan usaha yang berbeda memerlukan penyesuaian denah. Fleksibilitas desain menjadi solusi utama.
Prospek Investasi Ruko Minimalis
Ruko minimalis di Penukal Abab Lematang Ilir memiliki prospek investasi yang menjanjikan.
Permintaan Pasar
Permintaan ruko terus meningkat seiring pertumbuhan usaha lokal. Denah ruko yang baik meningkatkan nilai sewa dan jual.
Nilai Jangka Panjang
Bangunan ruko minimalis memiliki nilai jangka panjang yang stabil. Fleksibilitas fungsi mendukung keberlanjutan investasi.
Tabel Elemen Penting Denah Ruko Minimalis
| Elemen | Fungsi | Keterangan |
|---|---|---|
| Area Usaha | Aktivitas utama | Fleksibel |
| Area Servis | Pendukung | Di bagian belakang |
| Tangga | Akses lantai | Aman dan efisien |
| Fasad | Identitas usaha | Sederhana |
| Utilitas | Operasional | Terencana |
Baca Juga : Jasa Arsitek Penukal Abab Lematang Ilir
Endymion Construction sebagai Mitra Pembangunan
Endymion Construction merupakan perusahaan jasa kontraktor dan jasa arsitek yang berpengalaman dalam pembangunan ruko, bangun rumah, dan renovasi rumah. Perusahaan ini mengutamakan perencanaan matang dan hasil bangunan berkualitas.
Keunggulan Endymion Construction
Endymion Construction memiliki tenaga profesional yang memahami desain ruko minimalis secara menyeluruh. Setiap proyek dikerjakan dengan pengawasan ketat, penggunaan material berkualitas, dan penyesuaian desain sesuai kebutuhan klien.
Layanan Terpadu
Layanan Endymion Construction mencakup perencanaan desain, pelaksanaan konstruksi, serta renovasi bangunan. Pendekatan terpadu membantu klien menghemat waktu dan biaya.
Informasi Kontak Endymion Construction
Telp : 0838 2352 0252
Alamat : KOMP. SETIA BUDI POINT, Jl. Setia Budi No.15 BLOK C, Tj. Sari, Kec. Medan Selayang, Kota Medan, Sumatera Utara 20132