Denah Rumah Modern Sarolangun

Kebutuhan terhadap rancangan rumah modern di Sarolangun terus meningkat seiring perubahan gaya hidup masyarakat yang semakin mengutamakan efisiensi, kenyamanan, serta tampilan hunian yang menawan. Pembahasan mengenai tata ruang rumah masa kini menjadi penting karena memengaruhi bagaimana sebuah keluarga menjalani aktivitas sehari-hari. Rancangan ruang yang baik membuat hunian lebih tertata, memiliki nilai estetika yang kuat, dan memberikan pengalaman tinggal yang lebih menyenangkan.
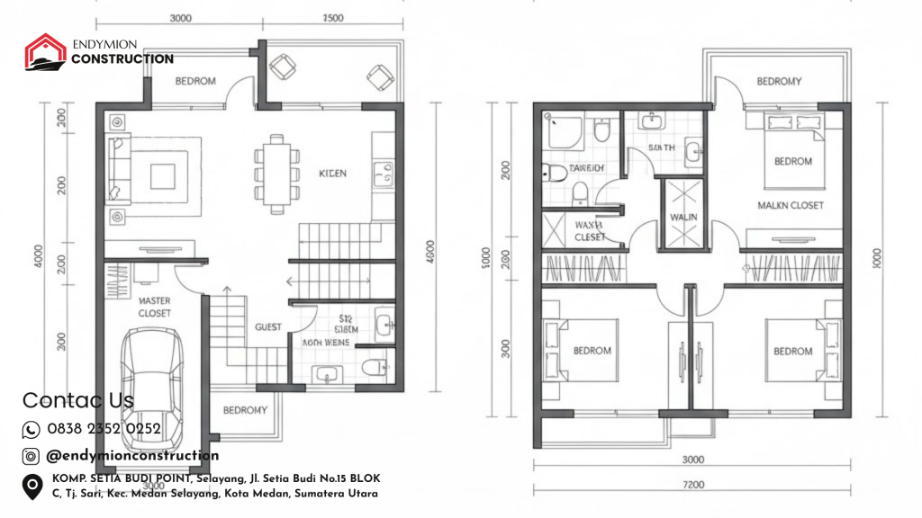
Peran Sketsa Hunian Modern Dalam Pembangunan Rumah
Perancangan tata ruang modern di Sarolangun berfungsi sebagai panduan yang menentukan arah pembangunan dari awal hingga akhir. Sketsa yang jelas membantu pemilik memahami posisi ruang, sirkulasi penghuni, dan hubungan antar area. Selain itu, rancangan yang matang mencegah kesalahan teknis yang sering terjadi jika pembangunan dilakukan tanpa konsep.
Pada hunian bergaya modern, perancangan awal memegang peran sentral karena memengaruhi pembagian ruang publik, privat, hingga servis. Perhitungan yang tepat membuat setiap ruangan bekerja sesuai fungsinya dan memberikan kenyamanan bagi seluruh anggota keluarga.
Konsep Ruang Modern Untuk Hunian Kekinian di Sarolangun
Penerapan konsep ruang modern di Sarolangun identik dengan tampilan bersih, penggunaan material yang efisien, dan penataan yang mengutamakan fungsi. Rancangan seperti ini menampilkan karakter hunian yang lebih rapi, terorganisir, dan mudah dibersihkan.
Selain itu, konsep ruang yang modern juga memaksimalkan cahaya alami. Bukaan besar, jendela lebar, dan sirkulasi udara menjadi dasar agar rumah terasa segar. Pemilik hunian dapat merasakan suasana interior yang lebih hidup dan tidak pengap.
Elemen Penting Dalam Perencanaan Tata Ruang Hunian Modern

Zona Publik Pada Rumah Bergaya Modern
Ruang tamu dan ruang keluarga menjadi bagian penting dalam rumah modern di Sarolangun. Kedua area ini sering menjadi pusat aktivitas keluarga sekaligus titik pertama yang dilihat saat tamu berkunjung. Desain ruang publik modern menggunakan garis sederhana dan tidak banyak dekorasi, sehingga memberikan kesan lapang.
Zona Privat Yang Nyaman
Kamar tidur, ruang pribadi, dan area belajar menjadi bagian yang menuntut ketenangan. Penerapan sketsa ruang modern di Sarolangun pada zona privat mengutamakan pencahayaan lembut serta sirkulasi udara yang baik. Penataan setiap elemen di dalam kamar memperhatikan kenyamanan penghuninya.
Zona Servis Untuk Kemudahan Aktivitas
Area servis seperti dapur, ruang cuci, dan kamar mandi memerlukan penempatan strategis. Rancangan hunian modern di Sarolangun menempatkan area ini agar mudah dijangkau namun tidak mengganggu tampilan utama rumah. Penggunaan perabot yang multifungsi menjadi salah satu trik untuk memaksimalkan ruang.
Ciri Tata Ruang Rumah Modern Yang Efisien
Efisiensi menjadi karakter utama dalam desain ruang modern. Setiap jalur pergerakan penghuni dibuat rapi dan tidak saling berhimpitan. Alur aktivitas keluarga seperti memasak, berkumpul, atau beristirahat dirancang agar tidak saling mengganggu.
Optimalisasi ruang pada rumah modern di Sarolangun juga terlihat dari pemanfaatan sudut kecil. Area yang sering diabaikan dapat berfungsi sebagai rak penyimpanan, area baca, atau dekorasi interior.
Contoh Pembagian Area Pada Rancangan Rumah Modern

Ruang Sosial Yang Menjadi Pusat Aktivitas
Pada hunian modern, ruang keluarga sering diposisikan sebagai pusat aktivitas. Ruangan ini dihubungkan langsung dengan ruang makan agar silaturahmi antar anggota keluarga lebih intens.
Ruang Transisi Yang Fungsional
Ruang makan berfungsi sebagai area penghubung dalam tata ruang modern di Sarolangun. Lokasinya biasanya berada di tengah, memudahkan akses antara dapur dan ruang keluarga.
Ruang Istirahat Yang Tenang
Kamar tidur ditempatkan jauh dari area yang memiliki intensitas aktivitas tinggi. Penempatan seperti ini menciptakan kualitas istirahat lebih baik bagi penghuni rumah.
Tabel Zona Ruang Pada Tata Letak Rumah Modern
| Zona Ruang | Fungsi | Keterangan Desain |
|---|---|---|
| Ruang Tamu | Menerima tamu | Tampilan rapi dan pencahayaan alami |
| Ruang Keluarga | Tempat berkumpul | Konsep open space |
| Dapur | Area memasak | Akses cepat ke ruang makan |
| Kamar Tidur | Area privat | Tenang dan nyaman |
| Kamar Mandi | Area bersih diri | Penataan efisien |
| Taman Belakang | Area relaksasi | Nuansa alami dan segar |
Baca Juga : Jasa Arsitek Sarolangun
Strategi Mendesain Sketsa Rumah Modern di Wilayah Sarolangun

Memahami Kebutuhan Penghuni
Kebutuhan penghuni sangat menentukan bagaimana rancangan rumah modern di Sarolangun diterapkan. Jika anggota keluarga sering bekerja dari rumah, ruang kerja perlu dibuat lebih luas. Sementara keluarga yang menyukai aktivitas sosial membutuhkan ruang keluarga sebagai titik utama.
Menentukan Arah Bangunan
Arah bangunan menentukan kenyamanan rumah. Orientasi yang tepat membuat pencahayaan masuk secara optimal dan ruang tidak terasa panas. Dalam perencanaan ruang modern, arah sinar matahari sangat diperhatikan sejak tahap awal.
Ventilasi Alami Yang Maksimal
Arus udara sangat berpengaruh terhadap kualitas hunian. Desain modern menempatkan ventilasi silang agar udara bergerak efektif. Pintu dan jendela harus disesuaikan dengan iklim sekitar.
Penyesuaian Furnitur
Pemilihan furnitur yang sesuai ukuran ruangan sangat penting. Furnitur minimalis lebih cocok dalam rumah modern di Sarolangun dibanding perabot berukuran besar.
Ragam Gaya Arsitektur Dalam Hunian Modern

Gaya Minimalis
Gaya minimalis menonjolkan kesederhanaan. Setiap ruang dirancang tanpa banyak dekorasi, menghasilkan suasana bersih dan lapang.
Gaya Kontemporer
Gaya kontemporer menampilkan kombinasi antara estetika modern dan sentuhan futuristik. Banyak menggunakan material kaca, besi, dan warna netral.
Gaya Industrial
Industrial ringan menjadi pilihan bagi yang menyukai tampilan lebih tegas. Penggunaan beton ekspos dan kayu alami memperkuat karakter industrial.
Alasan Rancangan Rumah Modern Banyak Digemari
Hunian bergaya modern banyak diminati karena mudah dipadukan dengan dekorasi apa pun. Tata ruang yang terencana membuat rumah terasa luas meski lahan terbatas. Selain itu, perawatan hunian modern jauh lebih mudah.
Rumah modern di Sarolangun juga sarat dengan nilai estetika yang mengikuti perkembangan zaman, sehingga tetap relevan untuk jangka panjang.
Konsep Ruang Terbuka Dalam Desain Rumah Kekinian
Open space menjadi tren kuat dalam hunian modern. Ruang tamu, ruang makan, dan ruang keluarga disatukan tanpa sekat agar suasana lebih lega. Konsep ini cocok untuk keluarga muda karena aktivitas lebih mudah terlihat.
Selain itu, ruang terbuka memberikan kesan hangat dan membuat rumah terasa lebih sosial.
Pencahayaan Alami Pada Rumah Modern
Pencahayaan alami membantu menghemat energi dan menciptakan suasana hangat. Bukaan jendela besar menjadi salah satu fitur penting dalam hunian modern di Sarolangun.
Selain hemat energi, cahaya alami juga meningkatkan kenyamanan visual penghuni.
Tata Ruang Modern Untuk Lahan Terbatas
Pada lahan yang sempit, desain rumah modern lebih mengutamakan fungsi vertikal. Penggunaan mezzanine atau lantai tambahan sering menjadi solusi. Dengan perhitungan yang tepat, lahan terbatas tetap bisa menghadirkan suasana rumah yang lega.
Lahan sempit tidak menjadi hambatan untuk menciptakan hunian estetik jika tata ruang disusun secara matang.
Tata Ruang Modern Untuk Lahan Lebar
Lahan lebar memberikan banyak fleksibilitas. Pemilik dapat menambahkan ruang hobby, ruang baca, hingga taman luas. Hunian modern di Sarolangun dengan lahan lebar biasanya memiliki halaman yang menambah kesegaran visual.
Lahan lebar juga memungkinkan pembagian ruang lebih leluasa tanpa membuat hunian terlihat kosong.
Rumah Dua Lantai Dengan Sketsa Modern
Bangunan dua lantai membutuhkan perencanaan ruang lebih detail. Lantai pertama biasanya untuk area sosial seperti dapur dan ruang tamu, sedangkan lantai kedua untuk area privat.
Perancangan rumah dua lantai dapat memaksimalkan lahan tanpa mengorbankan kenyamanan.
Taman Belakang Dalam Desain Rumah Modern
Taman belakang meningkatkan kualitas hidup penghuni. Keberadaannya memberikan ruang untuk bersantai dan menikmati udara segar. Banyak pemilik rumah modern menjadikan taman belakang sebagai ruang multifungsi.
Selain itu, taman belakang memperkuat hubungan antara ruang dalam dan luar.
Ruang Kerja Pada Rumah Modern
Ruang kerja menjadi elemen penting di era sekarang. Tempat ini harus berada pada area kondusif agar fokus tetap terjaga. Desain ruang kerja modern menggunakan pencahayaan tepat dan perabot ergonomis.
Ruang kerja yang nyaman meningkatkan produktivitas penghuni.
Anggaran Pembangunan Berdasarkan Sketsa Rumah Modern
Rancangan ruang membantu menghitung anggaran dengan akurat. Setiap ruang yang sudah ditentukan ukurannya memudahkan kontraktor memperkirakan material dan waktu pembangunan.
Menggunakan perencanaan awal mencegah pemborosan biaya dan mengurangi risiko kesalahan konstruksi di lapangan.
Kesimpulan
Rancangan hunian modern di Sarolangun memiliki peran vital dalam pembangunan rumah masa kini. Dengan penataan ruang terkonsep jelas, rumah menjadi lebih nyaman, fungsional, dan estetik. Hunian modern mampu mengikuti kebutuhan pemilik sekaligus memberikan tampilan yang tidak lekang oleh waktu.
Jasa Profesional Untuk Rumah Impian Anda
Endymion Construction merupakan perusahaan penyedia jasa kontraktor, jasa arsitek, pembangunan rumah, serta renovasi yang berpengalaman dan terpercaya. Setiap proyek ditangani dengan perencanaan matang dan pelaksanaan terstruktur. Perusahaan ini mengutamakan kualitas material, ketepatan waktu, serta hasil yang sesuai dengan konsep yang diinginkan klien.
Keunggulan Endymion Construction meliputi pelayanan konsultasi yang responsif, desain yang dapat disesuaikan kebutuhan, pengerjaan rapi, hingga anggaran yang kompetitif. Semua proses dilakukan secara profesional agar hunian yang dibangun memiliki nilai estetika dan kenyamanan terbaik.
Kontak Endymion Construction
Telp : 0838 2352 0252
Alamat : KOMP. SETIA BUDI POINT, Jl. Setia Budi No.15 BLOK C, Tj. Sari, Kec. Medan Selayang, Kota Medan, Sumatera Utara 20132