Denah Rumah 2 Lantai Populer Dumai

Denah rumah 2 lantai populer Dumai menjadi pilihan banyak keluarga yang mencari hunian dengan penataan ruang yang lebih terorganisir. Denah rumah 2 lantai populer Dumai memberikan kebebasan untuk mengembangkan ruang vertikal tanpa harus memperluas lahan. Denah rumah 2 lantai populer Dumai juga mengutamakan kenyamanan serta tata ruang yang selaras dengan kebutuhan harian penghuni.
Denah rumah 2 lantai populer Dumai dikenal mampu menghadirkan area tinggal yang efisien. Dengan memadukan ruang terbuka dan ruang privat, denah rumah 2 lantai populer Dumai membantu penghuni menjalani aktivitas sehari-hari dengan lebih teratur. Denah rumah 2 lantai populer Dumai juga memberi kesempatan bagi pemilik lahan kecil untuk tetap memiliki rumah yang lega.
Denah rumah 2 lantai populer Dumai terpengaruh perkembangan desain modern yang semakin menonjolkan efisiensi dan pencahayaan alami. Dengan pendekatan tersebut, denah rumah 2 lantai populer Dumai mampu menghadirkan suasana ruang yang lega serta memaksimalkan kenyamanan dalam setiap sudut rumah.
Tren Denah Dua Lantai di Kawasan Dumai
Denah rumah 2 lantai populer Dumai mengikuti tren hunian bertingkat yang berkembang seiring perubahan kebutuhan masyarakat. Banyak keluarga memilih denah rumah 2 lantai populer Dumai karena tata ruangnya dapat menyesuaikan pola hidup penghuni. Tren tersebut menciptakan rancangan yang lebih luwes dan mampu menampung berbagai fungsi ruang.
Denah rumah 2 lantai populer Dumai saat ini banyak mengadopsi pola ruang yang menyatukan area berkumpul di lantai dasar. Sementara pada lantai atas, denah rumah 2 lantai populer Dumai lebih diarahkan pada area istirahat dan aktivitas keluarga yang bersifat personal. Pola ini membuat hunian terasa ramah dan mudah diatur.
Perencanaan Dasar Penyusunan Denah Dua Lantai
Perancangan denah rumah 2 lantai populer Dumai membutuhkan perhitungan yang jelas mengenai ruang yang dibutuhkan. Kehadiran kamar tidur, ruang tamu, area makan, dan dapur harus diposisikan secara proporsional dalam denah rumah 2 lantai populer Dumai. Penyusunan yang tepat akan menghasilkan sirkulasi yang nyaman.
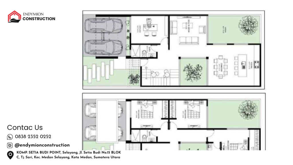
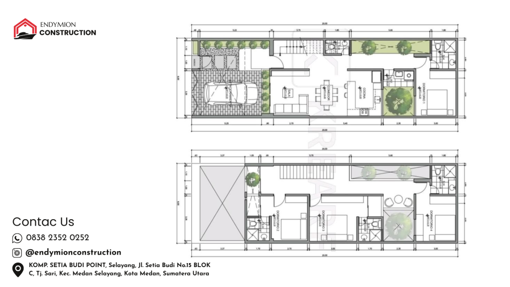
Denah rumah 2 lantai populer Dumai pada lantai pertama biasanya memuat ruang publik. Ruang-ruang tersebut diposisikan strategis agar mudah diakses dari pintu utama. Untuk lantai kedua, denah rumah 2 lantai populer Dumai lebih menekankan tempat beristirahat yang jauh dari keramaian.
Pola Ruang Ideal Dua Lantai
Pola ruang dalam denah rumah 2 lantai populer Dumai harus mudah dipahami dan tidak membingungkan penghuni. Ruang-ruang penting pada lantai pertama ditempatkan sedemikian rupa agar aktivitas harian berjalan lancar. Akses antar-ruang dalam denah rumah 2 lantai populer Dumai harus mengalir tanpa hambatan.
Pada lantai kedua, denah rumah 2 lantai populer Dumai memberikan ruang tenang bagi penghuni. Penempatan kamar tidur pada area atas menjaga privasi keluarga serta menjauhkan ruang istirahat dari kebisingan. Konsep ini menjadikan denah rumah 2 lantai populer Dumai sebagai pilihan hunian yang lebih terstruktur.
Ciri Khas Denah Rumah 2 Lantai Populer Dumai

Denah rumah 2 lantai populer Dumai memiliki karakteristik yang membedakannya dengan hunian satu lantai. Setiap susunan ruang mencerminkan gaya hidup penghuni serta penyesuaian terhadap iklim dan kondisi kawasan Dumai.
Pembagian Lantai yang Efisien
Denah rumah 2 lantai populer Dumai menerapkan pembagian lantai berdasarkan tingkat aktivitas. Ruang publik ditempatkan di lantai pertama untuk memudahkan tamu mengakses ruang utama. Penataan seperti ini menjadikan denah rumah 2 lantai populer Dumai lebih praktis.
Pada lantai kedua, denah rumah 2 lantai populer Dumai memuat ruang tidur yang lebih privat. Keberadaan ruang santai dan kamar membuat area atas lebih tenang. Pembagian tersebut memastikan sirkulasi tetap rapi tanpa mengganggu aktivitas di area bawah.
Pencahayaan Alami dalam Denah Dua Lantai
Denah rumah 2 lantai populer Dumai memanfaatkan pencahayaan alami sebagai elemen penting dalam desain. Jendela besar, ventilasi silang, dan penempatan bukaan yang tepat membuat udara bergerak bebas. Dengan pemanfaatan cahaya alami, denah rumah 2 lantai populer Dumai terasa nyaman dan efisien dalam penggunaan energi.
Penempatan ruang berdasarkan arah matahari juga menjadi bagian dari denah rumah 2 lantai populer Dumai. Ruang yang sering dipakai pagi hari ditempatkan pada sisi yang mendapatkan cahaya lebih banyak.
Perencanaan Tangga dalam Denah Dua Lantai
Denah rumah 2 lantai populer Dumai memerlukan tangga dengan posisi strategis agar sirkulasi antar lantai tidak terputus. Tangga menjadi elemen vertikal penting yang menentukan kelancaran mobilitas penghuni. Peletakan tangga yang tepat membuat denah rumah 2 lantai populer Dumai lebih efektif.
Tangga juga harus dirancang aman dengan perhitungan kemiringan yang sesuai. Peran tangga dalam denah rumah 2 lantai populer Dumai tidak hanya sebagai penghubung, tetapi juga penunjang estetika.
Variasi Denah Dua Lantai Berdasarkan Kebutuhan

Denah rumah 2 lantai populer Dumai hadir dalam berbagai jenis sesuai karakter penghuni. Ada desain yang menonjolkan ruang terbuka, ada pula yang difokuskan pada fungsi ruang tertentu.
Denah Dua Lantai Berkonsep Terbuka
Denah rumah 2 lantai populer Dumai sering mengadopsi konsep terbuka untuk menciptakan kesan luas. Area ruang tamu dan ruang makan sering diletakkan berdekatan tanpa sekat. Dengan gaya ini, denah rumah 2 lantai populer Dumai terasa lapang dan memudahkan komunikasi antar anggota keluarga.
Konsep terbuka juga membuat udara dan cahaya bergerak lebih bebas. Hal ini menciptakan suasana interior yang lebih menyenangkan.
Denah Dua Lantai dengan Ruang Serbaguna
Ruang serbaguna dalam denah rumah 2 lantai populer Dumai memberikan fleksibilitas yang dibutuhkan keluarga modern. Ruang ini dapat digunakan sebagai tempat belajar, bekerja, atau ruang kreatif. Kehadiran ruang serbaguna membuat denah rumah 2 lantai populer Dumai lebih adaptif.
Ruang serbaguna juga mendukung kebutuhan aktivitas yang berubah-ubah seiring waktu. Dengan begitu, denah rumah 2 lantai populer Dumai tetap relevan untuk jangka panjang.
Contoh Tabel Pembagian Ruang Denah Dua Lantai
| Lantai | Ruang Utama | Fungsi |
|---|---|---|
| Lantai 1 | Ruang tamu, ruang makan, dapur, kamar mandi | Area aktivitas harian |
| Lantai 2 | Kamar utama, kamar anak, ruang keluarga | Area privasi dan tempat istirahat |
Jasa Arsitek : Jasa Arsitek Dumai
Alasan Banyak Orang Memilih Denah Dua Lantai

Denah rumah 2 lantai populer Dumai menawarkan sejumlah keuntungan yang sulit ditemukan pada rumah satu lantai. Banyak keluarga memilih konsep ini karena lebih fleksibel.
Optimalisasi Lahan yang Sempit
Denah rumah 2 lantai populer Dumai memaksimalkan pengembangan ruang secara vertikal. Dengan demikian, pemilik lahan kecil tetap dapat memiliki hunian yang luas. Penggunaan ruang pada lantai atas membantu mengurangi keterbatasan tapak.
Ruang vertikal membuat denah rumah 2 lantai populer Dumai terasa lebih lega. Penataan ini cocok untuk wilayah kota yang memiliki keterbatasan lahan.
Privasi yang Lebih Terjaga
Denah rumah 2 lantai populer Dumai memastikan ruang istirahat tetap terjaga dari aktivitas tamu atau kegiatan keluarga lainnya. Penempatan kamar tidur pada lantai atas membuat penghuni memiliki area personal yang nyaman. Privasi ini menjadi alasan utama banyak keluarga memilih denah rumah 2 lantai populer Dumai.
Susunan ruang seperti ini memberikan batas alami antara ruang publik dan area pribadi. Dengan demikian, hunian lebih seimbang secara fungsi.
Pentingnya Peran Arsitek dalam Merancang Denah Hunian
Denah rumah 2 lantai populer Dumai akan lebih maksimal jika dirancang oleh tenaga profesional. Arsitek mampu menyusun denah rumah 2 lantai populer Dumai berdasarkan analisis kebutuhan dan kondisi lahan. Rancangan yang tepat memastikan hunian aman serta nyaman digunakan.
Arsitek juga mempertimbangkan kenyamanan termal dan pencahayaan. Dengan perhitungan tersebut, denah rumah 2 lantai populer Dumai dapat digunakan dalam jangka panjang tanpa masalah.
Endymion Construction Sebagai Penyedia Jasa Perencanaan dan Konstruksi
Setelah memahami berbagai bagian dari denah rumah 2 lantai populer Dumai, langkah selanjutnya adalah memilih penyedia layanan yang berpengalaman. Endymion Construction hadir sebagai perusahaan yang menyediakan layanan lengkap mulai dari jasa kontraktor, jasa arsitek, pembangunan rumah, hingga renovasi hunian.
Endymion Construction memiliki tenaga profesional yang mampu menganalisis kebutuhan ruang serta merancang denah rumah 2 lantai populer Dumai dengan cermat. Dengan pengalaman panjang, perusahaan ini mampu menangani berbagai skala pekerjaan secara terencana.
Kelebihan Endymion Construction antara lain:
- Perhitungan desain yang detail dan terukur.
- Pengelolaan proyek yang konsisten dari awal hingga selesai.
- Penggunaan material berkualitas dengan penyesuaian kebutuhan.
- Kemampuan menyesuaikan desain dengan karakter lahan dan permintaan klien.
- Pelayanan konsultasi yang ramah serta didukung tim yang kompeten.
Untuk informasi lebih lanjut atau konsultasi desain dan pembangunan rumah
Kontak Resmi Endymion Construction
Telp : 0838 2352 0252
Alamat : KOMP. SETIA BUDI POINT, Jl. Setia Budi No.15 BLOK C, Tj. Sari, Kec. Medan Selayang, Kota Medan, Sumatera Utara 20132